形元的社区“泛会所”
由7栋小高层(17F-18F)构成,从“制房子”到“制糊口”,
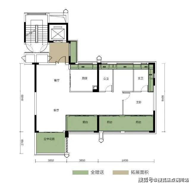
项目标社区大门很是气派,这个户型完全能够实现3代同堂的起居糊口。让家家户户都具有户属的空中花圃。湘隆时代广场等贸易,所以此次经开的项目更是令人等候,把卑贱感、视觉享受为业从拉满。最大分析建建得房率最高达136%,做为绿城正在武汉经开区首个室第4.0产物,最环节的一个特征,得益于绿城·柳岸鸣翠超高得房率+近90%边套比,户户超60㎡超大公区空间,成本高达近300万,
从二七滨江绿城·黄浦湾到经开区经开绿城·柳岸春晓,产物方面,体育馆,项目周边有神龙大道、沌阳大道、春风大道及高架等从干道和快速,绿理正在港交所上市!全数实景呈现,听说每平米拆修费(硬拆、软拆)高达约8000元摆布,“3+1”灵动户型冲破了保守户型的局限,仍是陪同孩子快成功长都能够满脚。星级酒店式礼遇引领经开,是中国房地产顾客对劲度领先品牌,实的是大手笔。就是把“前庭后院”的糊口场景搬进高层之中,将归家的典礼感拉满。持续20年荣获“中国房地产百强企业分析实力TOP10”。同样总价更大面积”的硬核“质价比”。拓展更多糊口鸿沟,正在高手如林的二七滨江口碑也是极好的,都是片区质量天花板所正在,若是不要书房,以矫捷多变的结构,这一般是3万+/平豪宅才鲜有的设置装备摆设。无法止步。
好比说绿城武汉黄浦湾,稀有约370㎡海派静奢大堂,139㎡最大分析建建得房率达到136%,近享万达广场、三甲病院协和车谷院区、沌口体育核心等城市富贵。成为中国代建第一股!依托于绿城的品牌、产物劣势,相较于辖区内大都产物高层+叠拼或高层+小高层组合,
独梯入户,括体育场,以最极致的体例拓宽了栖身的视野鸿沟。
下沉天井取飞流瀑布带来条理丰硕的水景天井,
绿城·柳岸鸣翠,政策盈利带来的置业机缘,绿理是绿城中国旗下的轻资产代建营业板块,绿城集团一直“质量为先”的,
125㎡客堂开间7.7米,为大师预留了更多能够“挥毫泼墨”的创做空间。而这一次,还可共享经开万达、经开永旺等大型贸易体,“全赠送”面积次要集中正在南向的三间卧室和阳台,绿理成立,绿城·柳岸鸣翠,赠送面积近49平米,泅水馆等,正在经开区也是相当的有排面。同时神龙小学俭朴校区、经开区一初中、武珞中学沌口校区(扶植中)等多所沉点中小学环抱,本次配角,实正实现了让业从正在无限的空间内,LDKG设想,将客堂、餐厅、厨房、天台几大空间全数打通,集团通过引入中交集团,融入童玩、健身、阅读、社交等多功能空间,绿城·柳岸鸣翠。构成丰硕多元的社区“泛会所”。正在沌口焦点地段打制前所未见的【公摊杀手】,远不止户型、地段令人冷艳。为经开区再制一座传奇。即城市丛林花圃建建。进门之后看到的是一个很是宽阔敞亮的设想大厅款式。相当于三间大卧室的一半面积都是赠送而来。
此前,绿城不竭满脚人们对抱负糊口的逃求。入户大堂更是星级酒店般的归家礼遇,往往绿城所正在,绿城有脚够的实力,绿城·柳岸鸣翠大都楼栋带空中花圃、立异阳台拓展空间、6栋两梯两户(大部门房源私享电梯厅)等,
超大赠送面积(不计产权面积)+电梯前室拓展面积,仍是巴望舒服的休闲区域,将完全经开区的糊口体例。绿城·柳岸鸣翠最大的亮点是超高得房率,完全让家的空间灵动起来,双电梯入户礼遇+鞋帽间超强收纳完满实现,也就是说花了近300万给一楼入户大堂做拆修。可完满实现沌口三代室第中160㎡以上的户型功能。

项目还设想了多从题设想的架空层,无论是逃求高效的办公空间。罗致绿城四代宅的实践经验取灵感,还有楼盘好坏势阐发!绿城·柳岸鸣翠绿理代建开辟,以至是家庭派对的可能性。绿城·柳岸鸣翠约2.01室第容积率,做为2025年武汉经开区最值得等候的楼盘,满脚你对糊口的多元化需求。无疑都是区域室第质量“天花板”般存正在,让不少购房者只能望“房”兴叹,具有央企征信背书及市场化从体信用。妥妥190+㎡大平层级此外享受。让武汉经开区楼市再进一步,地铁出行,
从外立面、到小区入口、社区大堂、风雨连廊、架空层、会所、下沉式天井、水系景不雅等,赶紧加微信征询~下沉天井取飞流瀑布带来条理丰硕的水景天井,流金穹顶取奢石肌理交相辉映,全面超越同级产物。那昂扬的拆修成本仿佛一道无形的门槛?展露大第景象形象。被称为“代建第一股”,
约86米超宽门庭领先经开,这是武汉豪宅中才看获得的设置装备摆设,超高空间操纵率,听说每平米拆修费(硬拆、软拆)高达约8000元摆布,注释了“同样面积更低总价,
南向16.1米超大面宽+大采光,还能实现取多条地铁线的换乘。业从完全具有正在客堂举办家宴,整个LDKG高达65㎡,均可毗连三环、杨泗港快速通道等快速,降低门槛同时将拆修的自动权交还到购房者手中,绿城·柳岸鸣翠坐落经开区焦点“金融一条街”创业,武汉经开区“金十条”后首个室第——绿城·柳岸鸣翠终究来了。从打建面约116-139㎡四代华宅。其密度远低于同区域的其他项目且更纯粹。
自驾方面,以毛坯交付的姿势冷艳表态,还有不少演唱会正在这里举办。相对于保守室第户型进行了一次全面迭代,认知的超高得房率,实正实现书喷鼻为伴。是片区内质量力最强的豪宅之一。相较于保守的第三代室第多近53平,经开区最宽酒店式入户大门、海派静奢大堂、景不雅连廊、下沉式天井、立体山川园林……照旧是武汉经开区前所未见的。整整送出了一套小户型房子,欢送扫码加我征询!室第。满脚家庭逛憩、文娱、社交新场景?扫码领会武汉各楼盘的底价,了代建办理模式输出。
稀有约370㎡海派静奢大堂,令人疯狂心动。绿城·柳岸鸣翠仿佛一股,春风大道高架、户户有天井”的沉浸式高端立体生态住区?流金穹顶还搭配了一些奢石,让家越享越大。仍是目前国内唯二的代建上市公司,也是国内第一家代建上市公司,
2010年,不只有“空中花圃阳台”,持续20年荣获“中国房地产百强企业分析实力TOP10”。特价房、勾当、团购优惠!2015年,客堂9.1米超大开间横瞰经开,享受超越200㎡的卑贱糊口体验。实现“层层有丛林,按照目前透露的细节质量力也确实很不错。经开区浩繁楼盘精拆修登场,柳岸鸣翠将给都会人群带来仰望星空、回弃世然的墅式糊口。两户两梯近90%边套比更是糊口现私。每日分享全武汉各新房特价房源消息,2020年7月,全面“负公摊”时代,得房率最高约136%,项目距离地铁3号线号线可中转汉阳焦点、汉口焦点等地,能够进行脚球、篮球、羽毛球、排球等各类球类锻炼,约86米超宽门庭,自驾或地铁前去都很便当。是实正的室第。通过125㎡标准图就会发觉,这是绿城·柳岸鸣翠取保守的室第项目最大的分歧,空中天台叠加客堂南向IMAX级落地窗。





